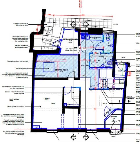
Sandringham House, Lombard Street, Lichfield
Property Features
- Ground floor offices
- Kitchen
- Two WC's
- Front and Rear entrances
- Immaculately presented and renovated throughout.
Property Summary
Jayman Commercial offer for let this recently renovated ground floor office unit at Sandringham House, Lombard Street.
Finished to an exceptional standard with kitchen area, two WC's, meeting room and front and rear entrances. Renovation is set to be complete by early May but contact us for more information and to join the waiting list to view this stunning new unit.
Full Details
Ground floor offices
Would make ideal offices for 6-8 people comprising of several open plan working areas with meeting room to rear.
Kitchen area has a range of units, sink and drainer and space for appliances.
Two WC's one with disability access.
Front and rear entrances with intercom access to front door.
Data links installed throughout for fibre / phone systems (tenant to source their own supplier)
Renovated throughout.
Disclaimer and AML checks
MONEY LAUNDERING REGULATIONS
Should an applicant have an offer accepted on a commercial property marketed by Jayman, they will need to undertake an identification check and asked to provide information on the source and proof of funds. This is done to meet our obligation under Anti Money Laundering Regulations (AML) and is a legal requirement. We use a specialist third party service together with an in-house compliance team to verify your information. The intending purchaser(s) will be asked to pay a non-refundable compliance fee of £30.00 inc. VAT per buyer for these checks and will be required to be paid in advance when an offer is agreed.
1: These particulars do not constitute part or all of an offer or contract.
2: The measurements indicated are supplied for guidance only and as such must be considered incorrect.
3: Potential buyers are advised to recheck the measurements before committing to any expense.
4: Jayman has not tested any apparatus, equipment, fixtures, fittings or services and it is the buyers interests to check the working condition of any appliances.
5: Jayman has not sought to verify the legal title of the property, and the buyers must obtain verification from their solicitor.
Application
Interested parties should apply via our online application form. Successful applicants will be subject to a £600 plus vat application fee for costs involved in obtaining satisfactory credit checks.


