Raby Drive, Lichfield
Property Features
- Three bedrooms
- Semi Detached
- Two parking spaces
- Spacious Kitchen / Diner
- Lounge
- Rear Garden
- Immaculate condition
- EPC B
Property Summary
Full Details
Approach
This superbly presented property has one parking space on the driveway in front of the property and a second designated space directly opposite.
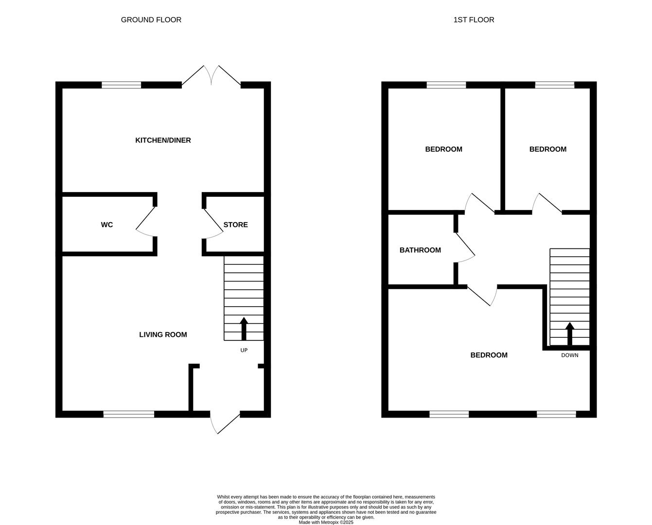
Living Room 4.6 x 4.03 (15'1" x 13'2" )
Spacious living room with entrance hall, stairs to first floor, window to fore and door leading to Kitchen to rear.
Kitchen / Diner 4.6 x 3.26 (15'1" x 10'8")
Modern fitted kitchen with a range of storage cupboards, sink and drainer, cooker with hob and extractor, space and plumbing for other appliances.
Double doors lead to rear garden.
Dining area has space for dining suite and doors to WC and Store Room.
Store Cupboard
Good sized store cupboard just off the kitchen.
Downstairs WC
Downstairs WC just off the Dining Area.
First floor
Landing with doors leading to;
Bedroom 1 4.08 x 3.59 (13'4" x 11'9" )
Double bedroom with windows to fore.
Bedroom 2 2.67 x 3.46 (8'9" x 11'4")
Double bedroom with window to rear.
Bedroom 3 3.45 x 1.92 (11'3" x 6'3")
Single bedroom with window to rear.
Bathroom
Modern fitted bathroom suite comprising of wash hand basin, wc, bath with shower above.
Rear Garden
With patio and lawn area and storage shed.
Lease Information
Rent charges £ 425.53
Service charge £24.18
Building Insurance £16.31
Management fee £6.99
Lease term remaining 120 years
Disclaimer and AML checks
MONEY LAUNDERING REGULATIONS
Should a purchaser(s) have an offer accepted on a property marketed by Jayman, they will need to undertake an identification check and asked to provide information on the source and proof of funds. This is done to meet our obligation under Anti Money Laundering Regulations (AML) and is a legal requirement. We use a specialist third party service together with an in-house compliance team to verify your information. The intending purchaser(s) will be asked to pay a non-refundable compliance fee of £30.00 inc. VAT per buyer for these checks and will be required to be paid in advance when an offer is agreed and prior to a sales memorandum being issued.
1: These particulars do not constitute part or all of an offer or contract.
2: The measurements indicated are supplied for guidance only and as such must be considered incorrect.
3: Potential buyers are advised to recheck the measurements before committing to any expense.
4: Jayman has not tested any apparatus, equipment, fixtures, fittings or services and it is the buyers interests to check the working condition of any appliances.
5: Jayman has not sought to verify the legal title of the property, and the buyers must obtain verification from their solicitor.
Looking to sell your home?
Our dedicated team is here to make the process smooth, stress-free, and successful.
We pride ourselves on exceptional customer service, guiding you every step of the way with clear communication, expert advice, and a personalized approach tailored to your needs.
Our top priority is to help you achieve the highest possible price for your property, using strategic marketing, local market expertise, and skilled negotiation. Trust us to deliver results with care, professionalism, and your best interests at heart. For a free valuation please contact us.

















